DIXMUDE | L’AIR CHAUD MONTE
2023 | Le Relecq Kerhuon (29)












_Mission de maitrise d’oeuvre complète
_Superficie isolée : 78m2
_Superficie serre : 41m2
_Matériaux : briques de chanvre, ossature bois, dalle bois, bardage bois, couverture fibrociment, polycarbonate
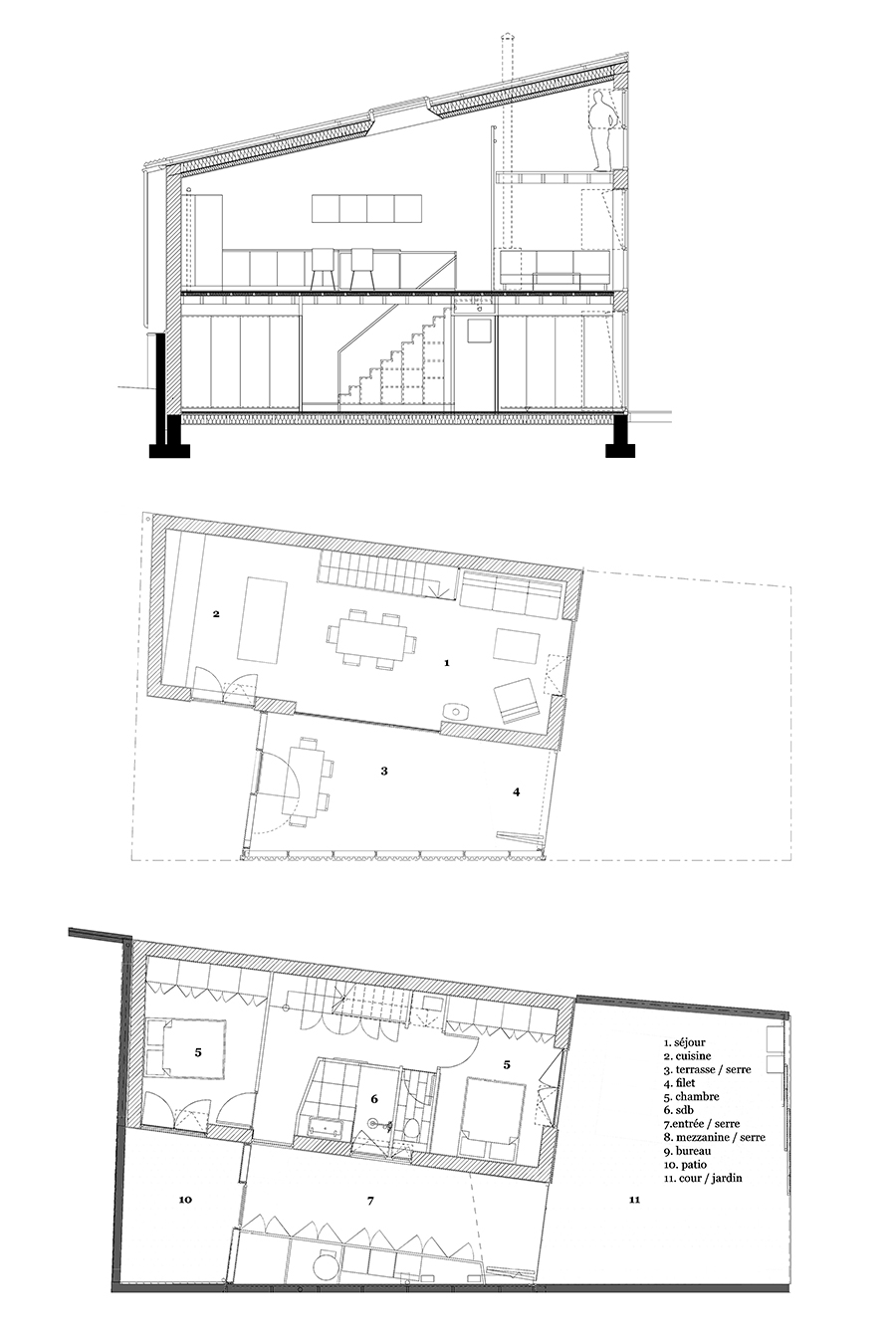
Cette maison est érigée sur une parcelle de 116m², encaissé d’un niveau dans la terre sur sa partie arrière. Le parti-pris a été de développer le programme sur trois niveaux, en y accolant une serre formant un jardin couvert à chaque niveau de la construction. Ainsi, la maison comporte un jardinet au Sud, un patio au Nord, et trois niveaux de serre. Cette dernière permet d’y planter des bac potagers ou des plantes d’agréments, mais aussi de profiter des températures douces de mi-saisons. L’avantage de cet espace est aussi son coût de construction très restreint, et sa grande luminosité.
Les murs de la maison sont construits en briques de chanvre assemblées à sec. Ce matériaux permet d’atteindre une bonne isolation des parois, et de réguler naturellement l’hygrométrie du logement. De nombreux matériaux ont été réemployés dans cette construction, tels que les parquets bois et les équipements sanitaires par exemple.